Villa in vendita a Fagnano Olona (VA)

Rif: 195
Condividi Linkedin Whatsapp Stampa
€ 195.000
Villa
150 Mq
4 Vani
Giardino
Classe energetica Non indicata
2 Camere
1 bagno
Fagnano Olona, immersa nel verde e nella tranquillità della Valle Olona, proponiamo casa singola allo stato rustico, situata in posizione collinare panoramica con vista aperta e dominante sul paesaggio circostante. La proprietà, da ultimare e personalizzare, rappresenta un'ottima opportunità per chi desidera realizzare la propria abitazione su misura, combinando indipendenza, natura e privacy. L'immobile si sviluppa su più livelli e dispone di giardino privato e ampio terreno di pertinenza, ideale per creare spazi esterni dedicati al relax.

Dettaglio immobile

Contratto Vendita
Rif 195
Prezzo € 195.000
Provincia Varese
Comune Fagnano Olona
Indirizzo Via Balzarine 2
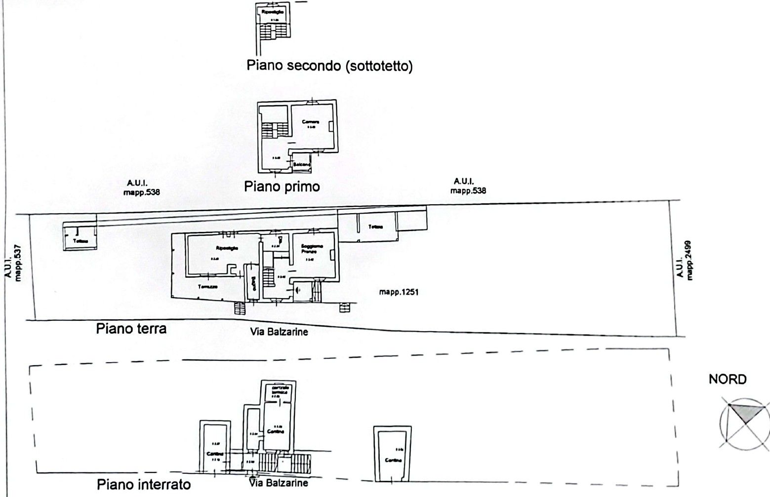
Superficie 150 mq
Vani 4
Camere 2
Bagni 1
Classe energetica Non indicata
Condizioni da ristrutturare
Ascensore no
Cantina si
Giardino
Cucina abitabile
Balcone si
Terrazza si

Consistenze

Descrizione Superficie Sup. comm.
Principali
Immobile - piano terra 105 Mq 105 Mqc
Immobile - 1° piano 27 Mq 27 Mqc
Altro - piano interrato 18 Mq 18 Mqc
Totale 150 Mqc

Video

Planimetrie

Richiedi maggiori informazioni

Autorizzazione al trattamento dei dati personali+
Dichiaro di aver letto l'informativa sulla privacy ed accetto le condizioni d'utilizzo del servizio.
Riempi il campo con il codice riportato nell'immagine*
Codice Captcha
Chiamaci Contattaci