Capannone industriale in vendita a Cavaria Con Premezzo (VA)

Rif: 239
Condividi Linkedin Whatsapp Stampa
€ 239.000
Vendita
Capannone industriale
300 Mq
1 vano
Classe energetica D
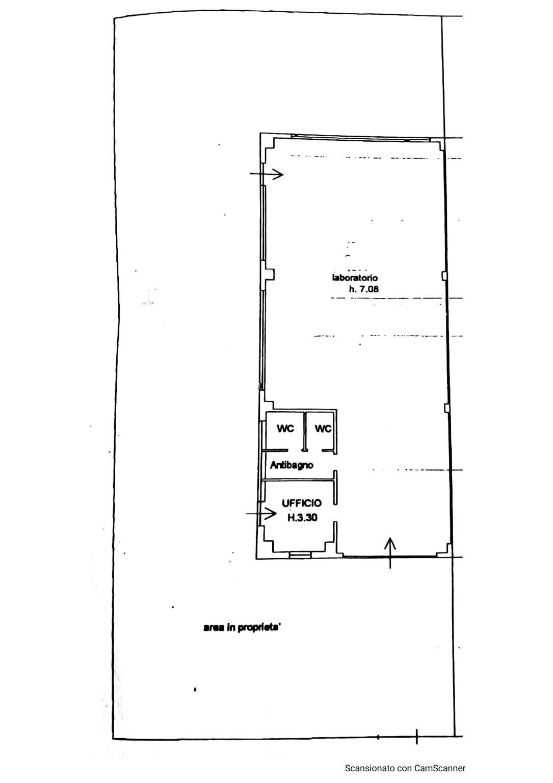
A Cavaria a 500 mt. dall'ingresso autostradale, proponiamo in vendita porzione di capannone di mq. 300 ca. in ottimo stato di manutenzione, dotata d'ingresso indipendente ed ampia area esterna privata di ca 500 mt. La soluzione si compone di un ampio vano uso laboratorio con altezza interna di 8 mt, carroponte movimentato da inverter con portata di 10 tonnellate, e uffici completamente attrezzati con impianto di climatizzazione. Sono inoltre presenti doppi servizi igienici e ventilatori a plafone che garantiscono un'ottima aerazione degli ambienti. All'esterno ampia area di proprietà con parcheggi privati fronte capannone. bagni, ampio spazio esterno di proprietà di mt 500 ca. , con parcheggi fronte capannone. A completare per la sicurezza sono presenti n. 2 centrali di allarme una all'interno ed una all'esterno ed un impianto videosorveglianza con telecamere perimetrali esterne. Una soluzione funzionale perfetta per attività artigianali, di produzione o deposito.

Dettaglio immobile

Contratto Vendita
Rif 239
Prezzo € 239.000
Provincia Varese
Comune Cavaria Con Premezzo
Indirizzo Via Monte Rosa 364
Superficie 300 mq
Vani 1
Classe energetica D (DL 90/2013)
EPgl,nren 65 kwh/m2 anno
Riscaldamento autonomo
Condizioni abitabile
Ascensore no

Consistenze

Descrizione Superficie Sup. comm.
Principali
Capannone - piano terra 300 Mq 300 Mqc
Totale 300 Mqc

Planimetrie

Richiedi maggiori informazioni

Autorizzazione al trattamento dei dati personali+
Dichiaro di aver letto l'informativa sulla privacy ed accetto le condizioni d'utilizzo del servizio.
Riempi il campo con il codice riportato nell'immagine*
Codice Captcha
Chiamaci Contattaci